Skautská nadace Jaroslava Foglara


Děti, mládež, rodina Regionální a komunitní rozvoj

Skautský dům Štěnovice

Pro skautský oddíl Dráčata ve Štěnovicích plánujeme postavit novou klubovnu. Prvním krokem je vypracování projektové dokumentace stavby, abychom mohli žádat o další podporu na její realizaci. Podpořte nás!

vybíráme od 3.5.2019

Klubovna Štěnovice

Zpracování projektové dokumentace nové klubovny
25 000 Kč
vybráno 31 % z 80 000 Kč

přispělo

10 lidí
Sbírka je již uzavřena. Děkujeme!
Skautský oddíl Dráčata Štěnovice zahájil svoji činnost 5. října 2016. Je složen z 60 dětí od 5 do 15 let a šesti vedoucích. Od vzniku oddílu je jasné, že dvě sklepní místnosti v rodinném domu vedoucích oddílu nebudou pro rozvoj Dráčat stačit. Začali jsme proto intenzivně řešit jiné prostory pro klubovnu. Ze všech možných variant vychází jako nejlepší stavba nové klubovny. S obcí Štěnovice máme předjednanou stavební parcelu a s panem Ing. Jiřím Preslem jsme začali plánovat podobu stavby.

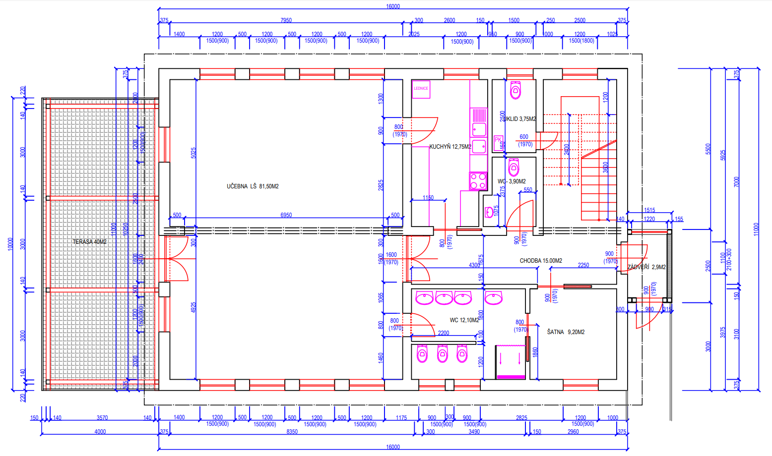
Záměrem je vybudovat skautský dům, který budou využívat skauti k pravidelné činnosti při schůzkách družin (přibližně desetičlenné skupinky dětí s vedoucím) cca 3 krát týdně 2 - 3 družiny najednou a kde se budou moci sejít i na schůzkách celého oddílu, tedy v místnosti, která pojme až 60 dětí.

Zároveň jsme hledali další možnosti využití objektu, inspirovali jsme se ve Skautském centru Senečák v Plzni, které slouží jako zázemí skautských oddílů a zároveň Lesní mateřské škole Medvíďata a letním příměstským táborům. Chceme, aby skautský dům ve Štěnovicích nabídl podobné využití.


V přízemí objektu je proto navržena část pro využití jednou třídou lesní mateřské školy (pro 15 dětí), která obsahuje šatnu, sociální zařízení a velkou učebnu. Ta by zároveň sloužila jako velký prostor pro oddílové schůzky skautů.
V přízemí je dále navržena kuchyně, která by byla výdejnou pro třídu lesní školky a místem pro vaření o víkendových akcích skautů.


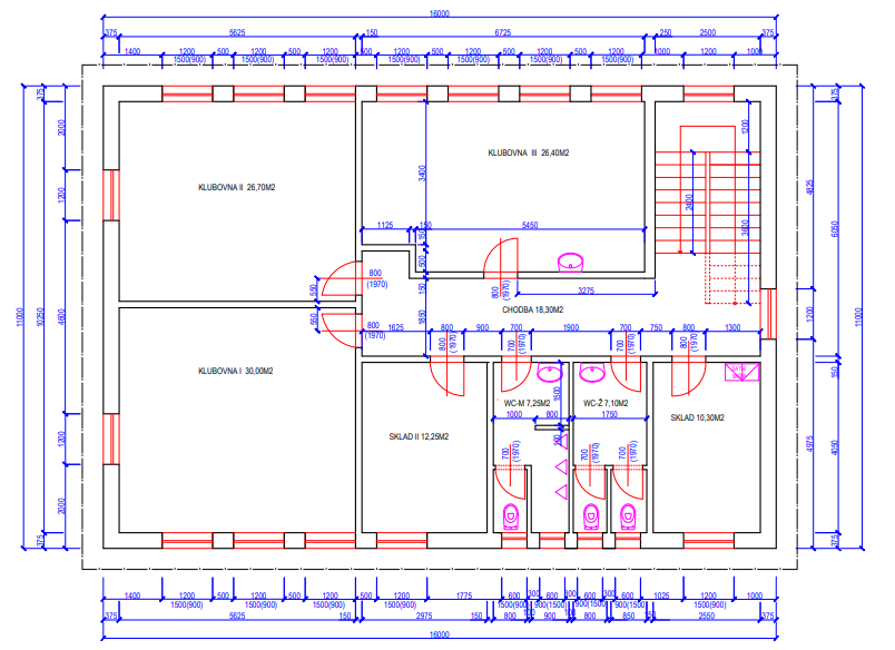
V patře jsou pak navrženy tři klubovny pro schůzky skautských družin a menší skladovací prostory.
Prostory tak bude možné využít jako zázemí pro konání letních příměstských táborů i víkendových skautských výpravv s přespáním na karimatkách.

Touto žádostí prosíme o pomoc s financováním projektové dokumentace, kterou začínáme připravovat.
V současnosti máme zajištěno:
- 10 000 Kč na studii skautského domu od Skautské nadace Jaroslava Foglara
- 20 000 Kč od obce Štěnovice
- 40 000 Kč od Plzeňského kraje

Celková cena za projektovou dokumentaci bude 200 000 Kč.
Hledáme další možnosti financování.
Neúspěšně jsme zatím žádali nadaci ČEZ.

Veškeré prostředky, které nám poskytnete použijeme na financování projektu, případně na spolufinancování stavby.

Předběžný propočet odhaduje náklady stavby na 5,5 mil Kč.
V současnosti máme ústní příslib pozemku a spoluúčasti na financování od obce Štěnovice. Předmětem dalších jednání bude forma poskytnutí pozemku (dlouhodobá výpůjčka, prodej...).
Hledáme možnosti na financování stavby za pomocí projektů EU, absolvovali jsme konzultaci v MAS Aktivios, kde je šance získat investiční dotaci na stavbu.
Pokroky v jednáních budeme zveřejňovat.

Děkujeme za Vaši jakoukoliv podporu!

Potvrzení o přijetí daru bude zasláno na váš e-mail v druhé polovině ledna následujícího roku, pokud si tuto možnost zvolíte v průběhu platby. Je zapotřebí vyplnit adresu bydliště, která bude součástí potvrzení. Dary v souhrnné výši 1000 Kč a více lze odečíst od základu daně z příjmu fyzických osob.

Podpořte tento projekt ještě víc a zapojte kamarády Založit dárcovskou výzvu