Pomozte nám v pokračování naší cesty.
Kus cesty jsme již urazili a čeká nás další etapa. Máme hotovou mapu naší cesty – projektovou dokumentaci – a čekáme na povolení ke stavbě. Naším snem je postavit klubovnu, která bude sloužit nejen 80 dětem z našich oddílů pro pravidelnou činnost, ale i dalším skautským oddílům a střediskům při jejich výpravách a vzdělávacích kurzech pro mládež. Chceme být pevnou součástí skautského světa a oplatit pohostinnost, kterou sami na výpravách využíváme.
Větší část klubovny chceme stavět svépomocí, abychom hodnotu nakoupeného či darovaného materiálu znásobili vlastní prací. Do projektu jsou zapojeny děti od těch nejmenších, které se budou podílet na budování zahrady, skauti a skautky, dospívající mládež i členové kmene dospělých. Stavbou svépomocí chceme praktickou formou zapojovat skautskou výchovnou metodu a učit děti zodpovědnosti, budování vztahu k jejich klubovně, přejímání zodpovědnosti za sebe a za svět kolem sebe.
Součástí naší klubovny bude i nová edukativní zahrada, která bude plná původních druhů rostlin, zídek pro plazy, broukovišť či hmyzích domečků.
Skautské oddíly v Doubravici nad Svitavou jsou součástí skautského střediska Rájec-Jestřebí.
Jakou část cesty jsme již prošli?
- Byl nám darován pozemek, na kterém můžeme klubovnu postavit. Vyřešili jsme podmínky pro jeho převod do vlastnictví střediska.
- Získali jsme první milion na stavbu – díky velkorysým darům i vlastním aktivitám
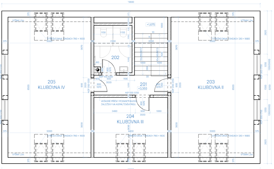
- Máme hotový projekt a takhle bude naše klubovna vypadat


Kam se vydáváme v nejbližší době?
- Budeme prezentovat klubovnu na různých akcích, benefičních divadlech…
- Chystáme se připravovat pozemek na vybudování zahrady (sběr kamenů, drobné terénní úpravy, výsadba…).
- Chtěli bychom začít stavět během léta 2026.
- Celkový rozpočet na materiál je 4 mil. Kč, budeme tedy hledat další materiální a finanční zdroje.
Pomozte nám, prosím, splnit náš sen a přispějte nám na naši klubovnu. Ke každému Vašemu daru nám Skautská nadace Jaroslava Foglara přidá polovinu! Každou darovanou tisícikorunou nám tedy s pomocí Skautské nadace přispíváte do banku částkou 1500 Kč. Váš dar má tedy mnohem větší váhu.
Děkujeme Vám za Vaši podporu.
Držím palce z Ústí a těším se co postavíte.